新闻动态
News

2024年英联国际1406招商中......

发布日期:2024-07-24 浏览量:702

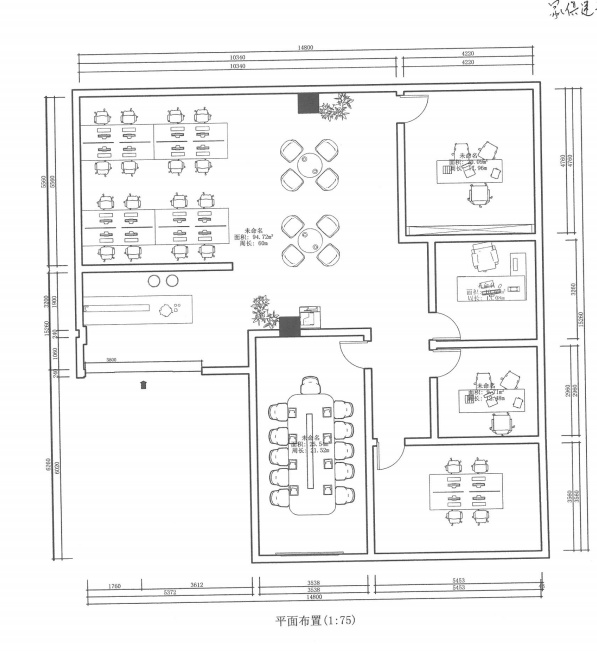
英联国际-1406

 火车南站西路,甲级写字楼

 面积:297.34平米

 价格:75含税 

 交付标准:精装带部分家具,4个办公室,1个大会议室,公共办公区可放16—30个工位。

 物业费:13元(含中央空调使用费)

欢迎各位精英推荐

 贺颖:13568894446










640.png